Apartamento T3

Aveiro, Aveiro

291.400 €

Apartamento T3
Enviar imóvel a amigo
 
   
 
   
Saber mais »  
 
Campos obrigatórios *
Apartamento T3, Aveiro, Aveiro 291.400 € REF: GF2016
3
3
1
114 m²
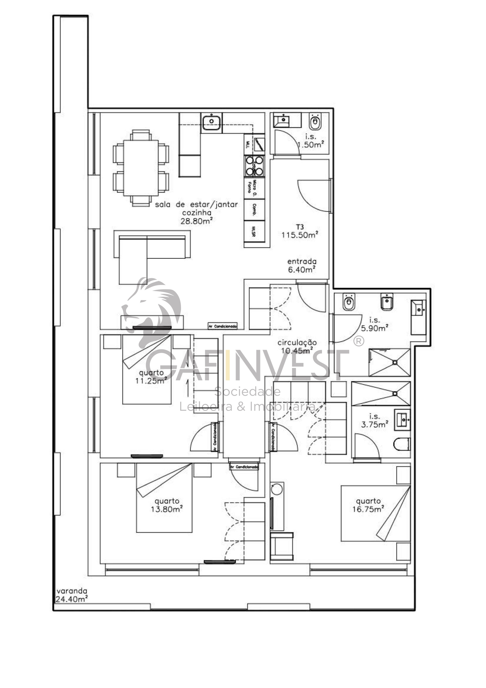
Apartamento T3 em construção em Aveiro
Fantástica exposição solar e áreas fabulosas!
Apartamento com cozinha equipada e sala de estar em estilo open space com acesso a varanda extensível a todo o apartamento, WC de serviço, hall de distribuição, 2 quartos com armários embutidos, WC completo, suíte com roupeiros embutidos e WC completo.
Excelentes materiais e acabamentos.
Garagem fechada.

Ótima oportunidade para quem procura imóveis novos no centro de Aveiro!
Venha fazer uma visita ou fale conosco para mais informações!
Tipo de imóvel Apartamento
Tipologia 3 Quartos
Objetivo Venda
Estado Em Construção
Preço 291.400 €
Ano Construção 2020
País Portugal
Distrito Aveiro
Concelho Aveiro
Freguesia Glória e Vera Cruz
Zona Gloria e Vera Cruz
Virginia Cruz
Virginia Cruz virginiacruz[^]gafinvest,pt 917707066
 
   
 
 
 
 
Enviar
Características Gerais
Gerais
  •  
Divisões
Divisões Área Pavimento Paredes Tectos Observações
 
Meio Envolvente
  •  
Facilidades
  •  
Domótica
  •  
Energias Renováveis
  •